
型號:Q41F46-150LB 更新時間:2017-10-15
特點:美標襯氟球閥內腔及球體均采用高壓注塑工藝襯有耐腐蝕、耐老化的聚全氟乙丙稀(F46),故具有可靠的耐腐蝕性和密封性。廣泛用於化工、石油、冶金、醫藥等工業部門,實現對生產過程中酸、堿等強腐蝕介質的調節或切斷,在水處理過程控製中使用效果最明顯。
Q41F46美標襯氟球閥產品用途
美標襯氟球閥內腔及球體均采用高壓注塑工藝襯有耐腐蝕、耐老化的聚全氟乙丙稀(F46),故具有可靠的耐腐蝕性和密封性。廣泛用於化工、石油、冶金、醫藥等工業部門,實現對生產過程中酸、堿等強腐蝕介質的調節或切斷,在水處理過程控製中使用效果最明顯。
美標襯氟球閥產品特點
1、采用FEP襯裏層的球閥,具有極高的化學穩定性,可以適用除"熔融堿金屬和元素氟",以外其它任何強腐蝕性質。
2、采用全通徑、浮動球結構,閥門可在整個壓力範圍內進行無泄漏關閉,更便於管路係統的通球掃線和管路維護。
3、啟閉件球件與閥杆鑄(鍛)為一體,杜絕了由於壓力變化引起閥杆衝出承壓件內的可能性,從根本上保證了工程中的使用安全性。
4、結構緊湊合理,閥體內腔空間最小,減小了介質滯留,另外,特殊的模壓工藝,使密封麵致密度良好,加之人字環形PTFE填料組合,使閥門達到零泄漏。
5、兩片式、三片式結構可適應各種不同要求的管路係統和工況條件,其中三片球閥允許主閥體與兩側閥體分離,可實現在線快速更換、維修 。
美標襯氟球閥基本參數
設計規範:遵循GB 12237,API 608,API 6D
驅動方式:手動、蝸輪傳動、氣動、電動。
公稱壓力:PN1.0~2.5(MPa)
公稱通徑:DN15~350mm
美標襯氟球閥試驗壓力
|
試驗項目 |
殼體試驗 |
密封試驗 |
上密封試驗 |
氣密封試驗 |
|||||
|
介質 |
水 |
氣 |
|||||||
|
單位 |
MPa |
Lbf/in2 |
MPa |
Lbf/in2 |
MPa |
Lbf/in2 |
MPa |
Lbf/in2 |
|
|
壓力等級 (磅級) |
150 |
3.1 |
450 |
2.2 |
315 |
2.2 |
315 |
0.5-0.7 |
60-100 |
|
300 |
7.8 |
1125 |
5.6 |
815 |
5.6 |
815 |
|||
|
400 |
10.3 |
1500 |
7.6 |
1100 |
7.6 |
1100 |
|||
|
600 |
15.3 |
2225 |
11.2 |
1630 |
11.2 |
1630 |
|||
|
900 |
23.1 |
3350 |
16.8 |
2440 |
16.8 |
2440 |
|||
主要零件材料
|
名稱 |
材料 |
||||||||
|
閥體 |
A216WCB |
A352 LCB |
A217WC6 |
A217WC9 |
A217 C5 |
A351 CF8 |
A351 CF8M |
A351 CF3 |
A351 CF3M |
|
球體 |
A182 F6 |
A182 F304 |
A182 F316 |
A182 F304L |
A182 F316L |
||||
|
閥杆 |
A182 F6 |
A182 F304 |
A182 F316 |
A182 F304L |
A182 F316L |
||||
|
手柄 |
KTH350-10 |
||||||||
|
螺柱 |
A193-B7 A320-L7 A193-B8 |
||||||||
|
螺母 |
A194-2H A194-7 A194-8 |
||||||||
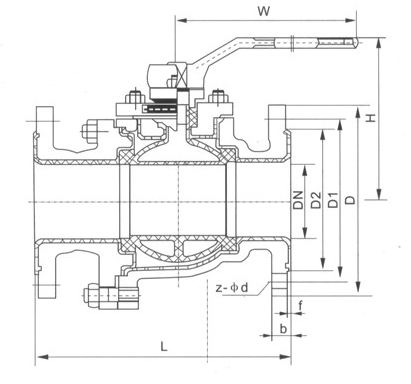
主要連接尺寸

|
型號 |
規格 (mm) |
尺寸 (mm) |
||||||||
|
inch |
DN |
L |
D |
D1 |
D2 |
b |
Z-Φd |
H |
W |
|
|
Q41F46-150Lb |
1/2″ |
15 |
108 |
89 |
60.5 |
35 |
12 |
4-Φ15 |
68 |
115 |
|
3/4″ |
20 |
117 |
98 |
70 |
43 |
12 |
4-Φ15 |
75 |
130 |
|
|
1″ |
25 |
127 |
108 |
79.5 |
51 |
12 |
4-Φ15 |
85 |
150 |
|
|
11/4″ |
32 |
140 |
117 |
89 |
64 |
13 |
4-Φ15 |
96 |
190 |
|
|
11/2″ |
40 |
165 |
127 |
98.5 |
73.2 |
15 |
4-Φ15 |
107 |
230 |
|
|
2″ |
50 |
178 |
152 |
120.7 |
92 |
16 |
4-Φ19 |
118 |
240 |
|
|
21/2″ |
65 |
190 |
177.8 |
139.7 |
104.7 |
18 |
4-Φ19 |
145 |
280 |
|
|
3″ |
80 |
203 |
190.5 |
152.4 |
127 |
19 |
4-Φ19 |
160 |
310 |
|
|
4″ |
100 |
229 |
229 |
190.5 |
157 |
24 |
8-Φ19 |
185 |
330 |
|
|
5″ |
125 |
356 |
254 |
216 |
185.7 |
26 |
8-Φ22 |
230 |
600 |
|
|
6″ |
150 |
394 |
279 |
241.3 |
216 |
26 |
8-Φ22 |
260 |
800 |
|
|
8″ |
200 |
457 |
343 |
298.5 |
270 |
29 |
8-Φ22 |
310 |
1000 |
|
|
10″ |
250 |
533 |
406 |
362 |
324 |
31 |
12-Φ25 |
350 |
1200 |
|
