
型號:Q641F46-16C 更新時間:2017-10-15
特點:氣動襯氟球閥流體阻力小,是所有閥類中流體阻力最小的一種。以AC220V、AC380V或DC24V電源電壓作動力,接受(4-20mA、0-10mA或1-5VDC)電流信號或電壓信號,即可控製運轉。以角行程輸出的扭矩轉動球體0~90o,達到啟閉動作或調節動作。
Q641F氣動襯氟球閥產品概述:
Q641F氣動襯氟球閥是一種(球體)繞垂直於通道軸旋轉90o的閥門,其由回轉型角行程電子式氣動執行器和O型閥結構組成。Q641F氣動襯氟球閥屬旋轉類型高性能調節或開關閥類,接受工業自動化控製(DCS、PLC係統)儀表來源的電流信號或電壓信號的輸入輸出。Q641F氣動襯氟球閥可實現對工藝管路中流體介質的比例調節或二位開關控製,從而達到對流體介質的流量、壓力、溫度、液位等參數的自動化控製。
Q641F氣動襯氟球閥產品特點:
1、流體阻力小,是所有閥類中流體阻力最小的一種。以AC220V、AC380V或DC24V電源電壓作動力,接受(4-20mA、0-10mA或1-5VDC)電流信號或電壓信號,即可控製運轉。以角行程輸出的扭矩轉動球體0~90o,達到啟閉動作或調節動作。
2、是全電子式氣動執行機構,采有機電一體化結構。Q641F氣動襯氟球閥具有機內伺服操作和開度信號位置反饋、位置指示、手動操作等功能,功能強、性能可靠、連線簡單。Q641F氣動襯氟球閥通過輸入電流信號或電壓信號,改變球芯的旋轉角度(0-90o任意角度),實現比例調節動作。
3、球芯通道平整光滑,不易沉積介質,可以進行管線式通球。結構簡單、重量輕、密封性能好。 Q641F氣動襯氟球閥特別適用於要求零泄漏率的場合。
4、有效的降低了球與密封圈之間的磨擦係數,減少了操作力矩。當介質壓力較小時,Q641F氣動襯氟球閥密封圈與球體接觸麵較小,故有較大的密封比壓,確保可靠密封,當介質壓力較大時,Q641F氣動襯氟球閥密封圈與球體接觸麵積也相應增大,故閥座密封圈能承受較大的介質推力而不會損壞,確保可靠密封。
Q641F46氣動襯氟球閥工作原理
Q41F46-10Cxiliechenfuqiufadegongzuoyuanlishikaoxuanzhuanfalianlaishifamenchangtonghuobisaide,falianhefatineicequanbucaiyongfusuliaozhicheng,qijuyoukaiguanqingbian,tijixiao,mifengkekao,jiegoujiandan,weixiufangbian,shiyongfanweiguangdengyoudian。
Q641F46氣動襯氟球閥基本參數
設計規範:遵循GB12237,API608,API6D
驅動方式:手動、蝸輪傳動、氣動、電動。
公稱通徑:DN15~200mm
Q641F氣動襯氟球閥主要技術參數
閥體及內件
|
閥體形式 |
兩段式鑄造閥體(內襯四氟) |
|
公稱通徑 |
DN15~DN400 |
|
公稱壓力 |
PN1.6、2.5、4.0 MPa;ANSI 150、300LB ;JIS 10、20、30K |
|
法蘭標準 |
GB、JB、HG、JIS、ANSI、DIN |
|
連接形式 |
法蘭式 |
|
壓蓋型式 |
螺栓壓緊式 |
|
適用溫度 |
-40~+180℃ |
|
球體形式 |
"O"型全襯氟球體 |
|
流量特性 |
近似快開特性 |
|
密封填料 |
V型聚四氟乙烯填料、柔性石墨填料等 |
氣動襯氟球閥執行機構
|
執行器型號 |
GT、SR、ST、AT、AW係列單雙作用氣動執行器 |
|
供氣壓力 |
0.4~0.7MPa |
|
氣源接口 |
G1/4"、G1/8"、G3/8"、G1/2" |
|
環境溫度 |
-20~+90℃ |
|
作用形式 |
單作用執行機構:氣關式(B)--失氣時閥位開(FO);氣開式(K)--失氣時閥位關(FC) |
|
可配附件 |
定位器、電磁閥、空氣過濾減壓器、保位閥、行程開關、閥位傳送器、手輪機構等 |
注:如需詳細執行器參數,請進入氣動執行器頁麵進行查閱。
氣動襯氟球閥主要零件材料
|
閥體 |
鑄鐵、鑄鋼、不鏽鋼 |
|
閥芯 |
不鏽鋼+聚四氟依稀(F46) |
|
閥座 |
聚四氟依稀(F46) |
|
閥杆 |
2Cr13 |
|
填料 |
柔性石墨、聚四氟依稀 |
|
支架 |
鑄鐵、鑄鋼、不鏽鋼 |
|
聯軸器 |
25、35、45 |
氣動襯氟球閥主要性能指標
|
公稱通徑 DN(mm) |
15 |
20 |
25 |
32 |
40 |
50 |
100 |
125 |
150 |
200 |
250 |
300 |
350 |
400 |
|
允許壓差(MPa) |
≤ 公稱壓力 |
|||||||||||||
|
動作範圍 |
0~90° |
|||||||||||||
|
泄露量Q |
軟密封VI級 |
|||||||||||||
|
基本誤差 |
帶定位器:小於全行程的±2% |
|||||||||||||
|
回差 |
帶定位器:小於全行程的2% |
|||||||||||||
氣動襯氟球閥主要性能規範
|
試驗壓力(MPa) |
公稱壓力(MPa) |
壓力級(class) |
JIS(K) |
|||||||
|
1.6 |
2.5 |
4.0 |
6.4 |
10.0 |
150 |
300 |
600 |
10K |
20K |
|
|
強度試驗 |
2.4 |
3.75 |
6.0 |
9.6 |
15.0 |
3.0 |
7.5 |
16.5 |
2.4 |
3.8 |
|
密封試驗 |
1.76 |
2.75 |
4.4 |
7.04 |
11.0 |
2.2 |
5.5 |
12.1 |
1.5 |
2.8 |
|
氣密試驗 |
0.4~0.7MPa |
|||||||||
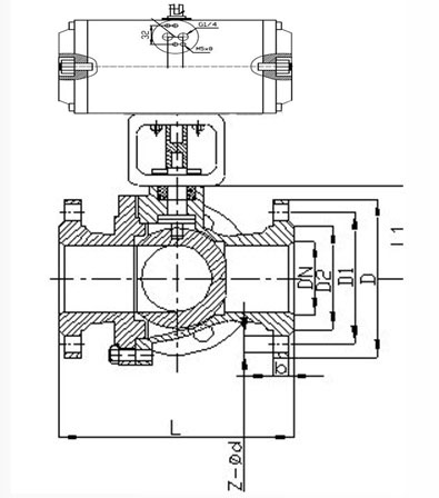
氣動襯氟球閥主要外形及連接尺寸

|
公稱通徑 DN(mm) |
15 |
20 |
25 |
32 |
40 |
50 |
65 |
80 |
100 |
125 |
150 |
200 |
250 |
300 |
|
L |
130 |
140 |
150 |
165 |
180 |
200 |
220 |
250 |
280 |
320 |
360 |
400 |
630 |
750 |
|
H |
44.5 |
49 |
55 |
65 |
65 |
75 |
90 |
95 |
115 |
127 |
140 |
172.5 |
310 |
350 |
|
H1 |
根據所配氣動執行機構而定 |
|||||||||||||
|
A |
||||||||||||||
|
D |
95 |
105 |
115 |
140 |
150 |
165 |
185 |
200 |
220 |
250 |
285 |
340 |
405 |
460 |
|
D1 |
65 |
75 |
85 |
100 |
110 |
125 |
145 |
160 |
180 |
210 |
240 |
295 |
355 |
410 |
|
D2 |
46 |
56 |
65 |
76 |
84 |
99 |
118 |
132 |
156 |
184 |
211 |
266 |
319 |
370 |
|
n-φd |
4-14 |
4-14 |
4-14 |
4-18 |
4-18 |
4-18 |
4-18 |
8-18 |
8-18 |
8-18 |
8-22 |
12-22 |
12-26 |
12-26 |
注:以上參數均以國標PN1.6MPa為(wei)準(zhun),其(qi)他(ta)壓(ya)力(li)等(deng)級(ji)請(qing)谘(zi)詢(xun)公(gong)司(si)技(ji)術(shu)部(bu),表(biao)中(zhong)尺(chi)寸(cun)為(wei)不(bu)帶(dai)標(biao)準(zhun)附(fu)件(jian)數(shu)據(ju),另(ling)由(you)於(yu)產(chan)品(pin)改(gai)進(jin)技(ji)術(shu)創(chuang)新(xin)參(can)數(shu)可(ke)能(neng)有(you)一(yi)定(ding)變(bian)化(hua),請(qing)谘(zi)詢(xun)公(gong)司(si)技(ji)術(shu)部(bu)門(men)索(suo)取(qu)最(zui)新(xin)數(shu)據(ju)。
