
型號: 更新時間:2017-09-13
特點:無
Q41F46不鏽鋼襯氟球閥特點:
不鏽鋼襯氟球閥內腔及球體均采用高壓注塑工藝襯有耐腐蝕,耐老化的聚全氟乙丙稀(F46),故具有可靠的耐腐蝕性和密封性。驅動方式:手動,蝸輪轉動,氣動,電動,該閥廣泛用於化工,石油,冶金,等工業部門,實現對生產過程中酸,堿等強腐蝕介質的調節或切斷,在水處理過程控製中使用效果最明顯。
Q41F46不鏽鋼襯氟球閥用途:
chenfuqiufaweikongzhigezhongqiangfushixingjiezhideqibierjinxingdezhuanyesheji,guangfanshiyongyushiyou,huagong,ranhua,nongyao,zhisuanzhijiandengxingye,shimuqianfangfufamenzuilixiangdexuanze.
襯氟球閥主要襯裏材料:聚全氟乙烯FEP (F46)
適用介質:任何有機溶劑或**,稀或濃無機酸,堿,酮,芳烴,氯化烴等。
Q41F46不鏽鋼襯氟球閥主要結構:
不鏽鋼襯氟球閥為全通徑浮動球式,內襯氟塑料。球體與閥杆融為一體,清除了轉動角差。閥杆不會從**衝出,密封性能好,安全可靠。
Q41F46不鏽鋼襯氟球閥結構特點:
1、不鏽鋼襯氟球閥的流體阻力小,襯裏球閥內壁光滑,流道通暢是所有閥類中流體阻力最小的一種。
2、不鏽鋼襯氟球閥開關迅速、方便,隻需將球體旋轉90°,便完成開戶和關閉動作。
3、不鏽鋼襯氟球閥采用特殊模壓工藝,將襯裏材料襯於閥門殼**壁,能耐強酸、強堿介質的腐蝕。襯裏球麵與PTFE閥座組合,密封性好,達到了零泄漏。
4、不鏽鋼襯氟球閥的球體與閥杆融為一體,消除了轉動角差,杜絕了因壓力變化引起閥杆衝出體外的危險,保證了使用的安全性、可靠性。
5、不鏽鋼襯氟球閥可配置氣動、電動、液動等多種驅動裝置,實現遠距離控製和自動化操作。
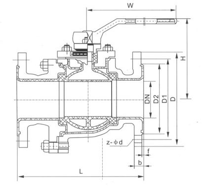
Q41F46不鏽鋼襯氟球閥結構圖:

|
公稱通徑 |
標準值 |
參考值 |
||||||||||
|
DN(mm)/td> |
NPS (inch) |
L |
D |
D1 |
D2 |
f |
b |
Z-φd |
Do |
H |
W(kg) |
|
|
PN1.6(MPa) |
||||||||||||
|
15 |
1/2 |
140 |
95 |
65 |
45 |
2 |
14 |
4-φ14 |
120 |
80 |
3 |
|
|
20 |
3/4 |
140 |
105 |
75 |
55 |
2 |
16 |
4-φ14 |
140 |
90 |
3.9 |
|
|
25 |
1 |
150 |
115 |
85 |
65 |
2 |
16 |
4-φ14 |
160 |
100 |
4.5 |
|
|
32 |
11/4 |
165 |
135 |
100 |
78 |
2 |
18 |
4-φ18 |
160 |
110 |
6.5 |
|
|
40 |
11/2 |
180 |
145 |
110 |
85 |
3 |
18 |
4-φ18 |
200 |
120 |
8 |
|
|
50 |
2 |
200 |
160 |
125 |
100 |
3 |
20 |
4-φ18 |
250 |
135 |
11 |
|
|
65 |
21/2 |
220 |
180 |
145 |
120 |
3 |
20 |
8-φ18 |
300 |
145 |
15.51 |
|
|
80 |
3 |
250 |
195 |
160 |
135 |
3 |
22 |
8-φ18 |
350 |
185 |
19 |
|
|
100 |
4 |
280 |
215 |
180 |
155 |
3 |
24 |
8-φ18 |
240 |
195 |
26 |
|
|
125 |
5 |
320 |
245 |
210 |
185 |
3 |
26 |
8-φ18 |
500 |
210 |
44 |
|
|
150 |
6 |
360 |
280 |
240 |
210 |
3 |
28 |
8-φ23 |
200* |
450 |
70 |
|
|
200 |
8 |
457 |
335 |
295 |
265 |
3 |
30 |
12-φ23 |
240* |
190 |
110 |
|
